Complete Guide to Lubricated Plug Valves

Complete Guide to Lubricated Plug Valves

On this page
The plug valve is one of the oldest valves in use today and is mainly used to quickly close the flow of liquids. The plug valve starts or stops the flow by a quarter-turn rotating motion and consists of a tapered or cylindrical plug.

Plug valves work similarly to ball valves, but are more compact in design. They are mainly used in oil, gas, chemicals and water services. While very effective in stopping or starting the flow of liquid, it is not precise in regulating the flow of liquid. Plug valves are available in a variety of types and designs, including lubricated, non-lubricated, eccentric and expansion plugs. Lubricated plug valves, due to their tight closure, are most common in industries dealing with difficult-to-handle liquids.

What is a Lubricating Plug Valve?

Lubricated plug valves are pressure-injected with lubricants (base oil and viscosity improvers) to reduce friction and provide a seal between seat surfaces. Lubricated plug valves require regular lubrication and are therefore expensive to maintain and are recommended for infrequent applications. Although the cock is mostly cylindrical, there are also conical ones.

Unlike ball valves or non-lubricated plug valves, lubricated plug valves are designed with grooves in the cock that hold the lubricant. When used, the lubricant prevents adhesion and provides fluid pressure to help lift the cock and reduce the force required for rotary operation. In addition, the lubricant provides a seal between the valve body's seat surface and the cock, ensuring tight closure.

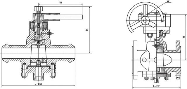
Lubricated Plug Valves Structure Drawing

The Working Principle of the Lubricating Plug Valve

The lubricated plug valve has a cavity that passes through the center of the cock and extends down its axis, sealed at the bottom with a sealant injection fitting mounted on the rudder. These valves simplify various operations with sealants or lubricants. The lubricant or sealant is injected into the cavity through the check valve, which is usually installed directly below the injection fitting to prevent the lubricant from backflowing.

The lubricant flows through the radial opening and into a groove in the face of the plug seat. The type of sealant used is determined by the nature of the fluid medium flowing through the pipe, and the correct sealant must be selected for the flow medium and operating conditions. Be careful when choosing a lubricant, as the flowing medium may dissolve or degrade it.

Choosing the wrong lubricant may contaminate the flow medium or cause damage to the sealing structure, resulting in leakage. In addition, the sealant should not change the properties of the medium or be denatured by the temperature of the flowing medium.

Installation Guide for Lubricating Plug Valves

Before installing the lubricating plug valve, ensure that the valve characteristics meet the specifications and check the valve information correctly. This information can be found in the nameplate and name label on the case of the product. If no information is available, contact the manufacturer or seller immediately.

All packaging should not be removed before the valve is ready to be installed. If the protective end cover of the valve has been removed for inspection, replace it immediately after the inspection is completed. Ensure valves are stored in a dust-free environment and cleaned and tested prior to installation.

(1) Remove the valve from the storage and inspect it for any damage that may have occurred during transportation or storage.

(2) Remove the valve end protector before installation, and check whether the flange surface is clean and non-destructive. If necessary, remove any debris and scale from the valve to prevent damage to the valve seal during use, resulting in leakage.

(3) Depending on the layout of the pipe, the lubricating plug valve can be installed horizontally or vertically. However, it is not recommended to install the valve and its operator below because the design does not allow water and sediment runoff.

(4) Make sure the pipe is firmly supported to reduce vibration and stress in the valve. Ensure that vibration does not stress the valve during tightening, as overtightening can cause damage to the valve end flange.

The Difference between Lubricating Plug Valves and Non-lubricated Plug Valves

The main difference between lubricated plug valves and non-lubricated plug valves is that the former uses a lubrication system to continuously restore the seat and extend its service life. Non-lubricated plug valves have non-metallic thermoplastic or elastomer lining to reduce friction between body and plug.

While both provide anti-bubble liquid shutdowns, lubricated plug valves require more maintenance than non-lubricated plug valves. However, non-lubricated plug valves cannot be used in high temperature applications due to non-metallic seat limitations.

Conclusion

Choosing the best plug valve for your system is critical. Before proceeding, it is important to understand the different types and styles of plug valves required. If you want to install a lubricating plug valve in your system, you must strictly follow the installation guide and follow all the precautions in the manual.

Name*
E-mail*
Rate*
Comments*


About the author
Cheryl
Cheryl